The ESYO Center for Musical Youth

PROJECT NEWS

A New Home for Youth Music

A space where creativity, collaboration, and community come together.

For more than 40 years, the Empire State Youth Orchestra (ESYO) has inspired hundreds of young musicians to find their voice through music. Now, with your help, we’re building a home worthy of their talent and dreams — The Center for Musical Youth, a vibrant, accessible, and acoustically state-of-the-art campus located at 45 MacArthur Drive in Schenectady County.

THE PROJECT

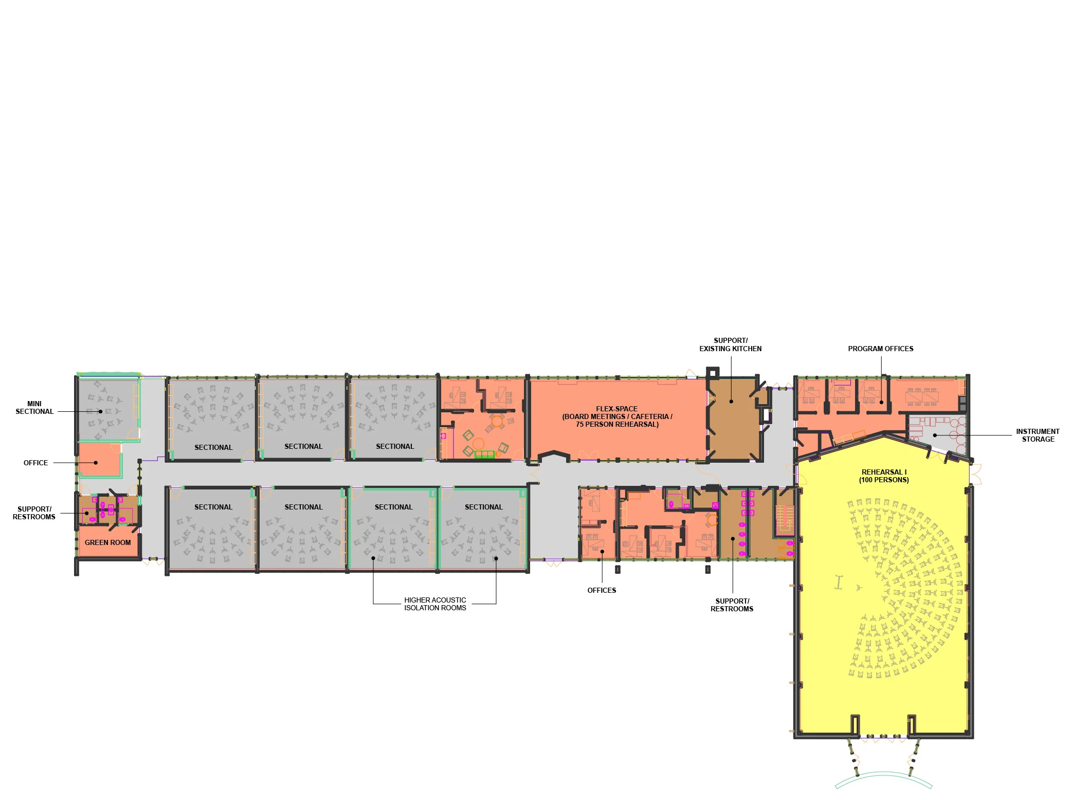
The Vision

The Center for Musical Youth will provide custom-built spaces crafted with young musicians in mind—designed for optimal acoustics, ensemble flexibility, and accessibility. Gone will be the days of hauling heavy instruments up stairs or competing for rehearsal space. This purpose-built campus will double as a regional hub for youth arts and creative collaboration, featuring a versatile layout ideal for rehearsals, small performances, workshops, and community gatherings. Every detail of the Center has been imagined to help students learn, create, and thrive together.

Designed by Envision Architects and built by LeChase Construction, the new 20,000-square-foot facility will feature:

  • Purpose-built rehearsal halls, recording and media studios

  • Flexible classrooms for sectionals, lessons, and creative projects

  • A community room for social gatherings and events

  • Offices, meeting spaces, and storage for instruments and equipment

    A welcoming lobby and donor lounge celebrating our community of supporters

Project Team

Envision Architects Logo
Sano Rubin Logo
GPI Engineering Logo
Acoustic Distinctions Logo
Theatre Projects Logo
Ignite Philanthropy Logo
Cresa Project Management Logo
Ambient Environmental Logo

Our partners — GPI Engineering, Acoustic Distinctions, and CRESA Project Management — are helping ensure the center meets the highest standards of acoustics, design, and accessibility.

Invest In Building Harmony

Thanks to remarkable generosity and public support, we’ve already secured $10.3 million toward our $12.3 million goal. Now, we need your help to cross the finish line and make this extraordinary space a reality.

Every gift — large or small — helps shape the sound of the future.

Interested in Learning More?

Contact Rebecca Calos for more information

SEARCH